


O oportunitate rară de a poziționa afacerea într-una dintre cele mai prestigioase zone din centrul vechi al Brașovului.
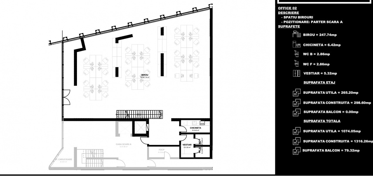
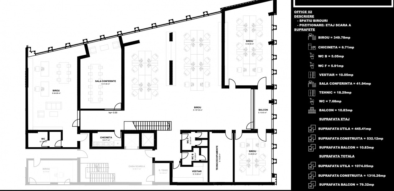
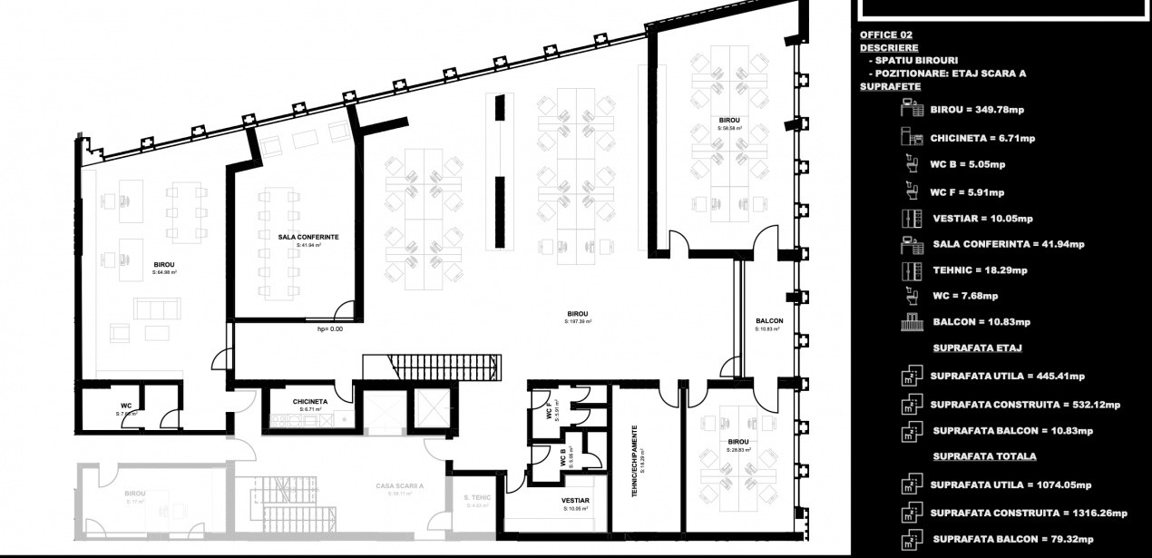
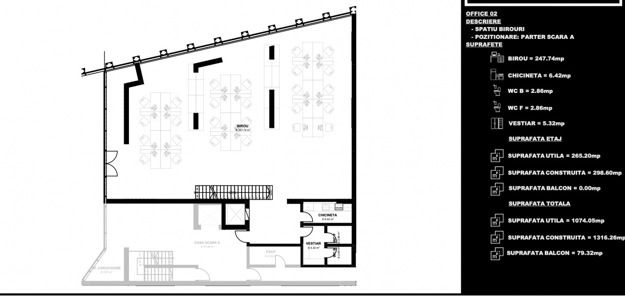
Proprietatea dispune de o suprafață totală generoasă de 1.074 mp, distribuită pe 3 nivele, oferind un spațiu versatil și eficient pentru diverse activități de business (birouri, sediu companie, clinică, hub creativ etc.).
🔹 Compartimentare & facilități:
Spațiu desfășurat pe 3 niveluri
Scară interioară pentru acces facil între etaje
Lift – accesibilitate completă
Grupuri sanitare pe fiecare nivel
Chicinete funcționale
Compartimentare flexibilă
🌿 Exterior:
Grădină proprie de 79 mp, ideală pentru relaxare, networking sau zonă de pauză pentru angajați
📍 Localizare excelentă:
Situat în centrul istoric al Brașovului
Acces rapid către puncte de interes, instituții, restaurante și mijloace de transport
Vizibilitate și prestigiu pentru orice tip de activitate
💼 Ideal pentru:
Sediu firmă
Birouri corporate
Clinică / centru medical
Firmă IT / agenție
Activități comerciale premium
Conditii de inchiriere:
* Utilitatile se platesc separat
*Comision agentie: 50% + TVA din contravaloarea chiriei pe o luna
Acces facil la principalele puncte de interes ale orașului.
Contactează-ne pentru mai multe detalii sau pentru a programa o vizionare.