
















Salut,
Esti in cautarea casei potrivite, dar te-ai saturat de anunturile din online care promit calitate, dar dezamagesc in realitate? Te invitam sa descoperi ce inseamna cu adevarat raportul calitate/pret in dezvoltarea imobiliara de succes, chiar la fata locului.
DE CE aceasta casa merita cu adevarat atentia ta?
* Pentru ca azi, la pretul acesta, nu mai gasesti nici macar un apartament cu 3 camere, decent construit.
* Pentru ca raportul calitate/pret al acestei proprietati este EXCEPTIONAL.
* Pentru ca te poti muta intr-o comunitate in crestere.
* Pentru ca zona este in dezvoltare, asa ca peste cativa ani cel mai probabil casa ta va valora muult mai mult decat pretul la care o poti cumpara astazi.
* Pentru ca nu exista o alta casa mai bine facuta, in acelasi pret.
* Pentru ca oamenii din "spatele" constructiei au simt de raspundere si chiar isi doresc ca tu sa beneficiezi de ceva bine construit, durabil si de care sa te bucuri alaturi de cei dragi.
Unde?
La cca. 10 km distanta de Brasov, in localitatea Sanpetru. Poti cauta in Waze sau Google Maps: Harmony Village Sanpetru.
Ansamblul nostru rezidential imbina avantajele vietii urbane cu linistea mediului rural.
Invecinat cu Dealul Lempes, complexul Harmony Village ofera viitorilor proprietari cadrul perfect pentru o viata de poveste, intr-o locatie cu trafic redus, departe de zgomotul orasului si totusi aproape de tot ce ai nevoie: Lempes Market, Clinica Veterinara Lempes, Car Wash Lempes, Sufra 184, Carrefour Express Harman.
Amplasat pe strada Agriselor, cu acces din Calea Harmanului DJ 108, complexul nostru rezidential ofera 3 rute alternative catre Brasov:
- prin Sanpetru - zona Tractorul
- prin Harman DJ108
- prin zona Stabilus, direct in DN 11.
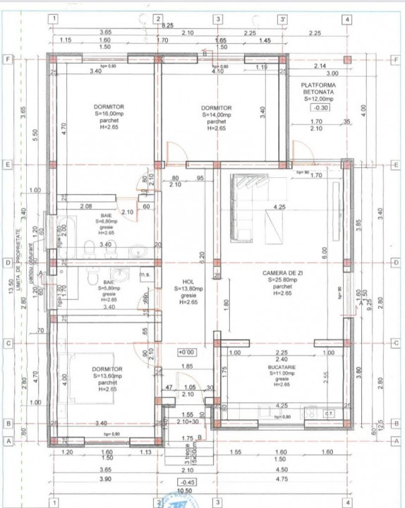
Compartimentare practica, adaptata nevoilor familiei moderne de astazi
* hol foarte generos;:
* living spatios cu zona de dining si bucatarie deschisa (cu posibilitatea de inchidere);
* terasa cu iesire din living;
* trei dormitoare din care un dormitor este matrimonial si dispune de baie proprie (prevazuta cu cada, bideu, vas wc, chiuveta si mobilier baie);
* baia secundara (prevazuta cu cabina de dus, vas WC, chiuveta si mobilier baie);
* acces pod;
Aspecte tehnice:
- Casele au o suprafata utila totala de 106,8 mp, iar suprafata terenului este 450 mp.
- Sistemul de incalzire in pardoseala al caselor este asigurat de o centrala pe gaz.
- Utilitati: curent electric, gaz, apa curenta, canalizare.
- Sistemele de ferestre Salamander profil 7 camere si tripan, permit suprafete vitrate mari, care sa-ti ofere lumina naturala din belsug.
-Finisajele pentru pardoseli sunt realizate cu placi ceramice in bucatarie, hol si bai, iar in dormitoare cu parchetul laminat.
- Structura de rezistenta este alcatuita din beton armat, stalpi, grinzi, planseu din lemn termoizolat cu vata bazaltica de 20 cm, iar acoperisul cu structura din lemn, cu folie anticondens si tigla ceramica Bramac.
- Peretii sunt construiti din caramida de 30 cm, la care se adauga o izolatie termica cu polistiren de 10 cm.
- Fiecare casa va fi predata cu gard de imprejmuire, trotuar betonat, alee pietonala pavata si gazon.
Cat vei plati?
Pretul este de 160.000 euro + TVA.
Comisionul pentru cumparator este 0%.
Important de stiut:
Fotografiile din prezentare sunt cu scop informativ: s-au folosit atat randari, cat si imagini reale din diverse stadii ale constructiei caselor anterioare.
In prezent, casele sunt la stadiul "la gri", ceea ce este extraordinar pentru tine deoarece iti poti alege singur finisajele in nuantele si materialele dorite de tine.
DA, ai citit bine! Iti poti alege tu finisajele dorite, asa ca viitoarea ta casa va arata exact asa cum iti idoresti.
Pentru informatii suplimentare sau programarea unei vizionari, te invitam sa ne contactezi telefonic sau whatsapp: 0745333322.
*La solicitarea cumparatorilor, anumite finisaje se pot optimiza in functie de buget sau preferinte.