


































Va propunem spre vanzare un apartament cu 4 camere situat in cartierul Racadau - la pietonala, una din cele mai apreciate zone din cartier.
Proprietatea are o structura semidecomandata, este situata la etajul 1 al unui bloc cu 8 etaje din str. Jepilor, chiar langa Scoala nr.4.
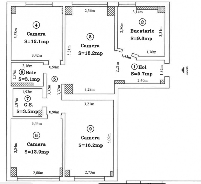
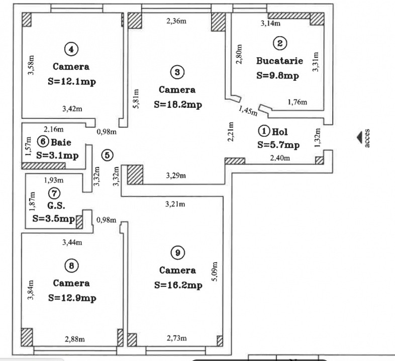
Apartamentul este compus din 4 camere dupa cum urmeaza: hol de acces deschis cu livingul, bucatarie inchisa, hol secundar cu acces catre cele doua bai (una cu cada si una cu dus) si 3 camere (dormitoare/birou). Proprietatea se vinde impreuna cu acces catre uscatorie si boxa/beci.
Imobilul este foarte bine ingrijit, intretinut. Inca de la intrare iti ofera sentimentul de "acasa" - pe care numai un spatiu cald, insorit il poate oferi. Orientarea camerelor este catre Est si Vest, iar privelistea se face catre doua laturi: una catre pietonala Racadau si cealalta catre munte.
Se vinde mobilat si utilat, cu exceptia catorva lucruri (mobilierul din zona de living - mobilierul din lemn, pianina, mobilierul din dormitorul copilului, precum si frigiderul).
Proprietatea are un loc de parcare (inchiriat de la Primarie).
Imobilul este foarte bine intretinut si pastreaza o atmosfera calda si cozy, perfecta pentru o familie sau pentru cei care isi doresc confort si acces facil la toate punctele de interes din zona.
Despre cartierul Racadau:
Racadau este una dintre cele mai verzi si linistite zone ale Brasovului, apreciata pentru aerul curat si proximitatea fata de padure. Cartierul dispune de:
pietonala moderna, cu zone de plimbare si piste de biciclete, acces facil la gradinite, scoli, supermarketuri si piete locale, multiple spatii de joaca si locuri de relaxare pentru intreaga familie, transport public bine conectat cu centrul orasului, atmosfera sigura si comunitate activa, ideala pentru familii.
📞 Pentru informatii suplimentare si vizionari, va stam cu drag la dispozitie.